Repräsentative, innenstadtnahe Büroflächen

37083 Göttingen, Büro/Praxis zur Miete

Kontaktdaten

Daniela Wolpert, feinRAUM Immobilien

Objektdaten

  • Objekt-ID
    0669
  • Objekttyp
    Büro/Praxis
  • Adresse
    37083 Göttingen
    Niedersachsen
  • Etage
    2
  • Etagen im Haus
    4
  • Gesamtfläche ca.
    177 m²
  • Küche
    Einbauküche
  • Heizungsart
    Zentralheizung
  • Baujahr
    1872
  • Letzte Modernisierung
    2011
  • Zustand
    modernisiert
  • Außen­stellplatz
    Stellplatzmiete: 35,00 EUR (Anzahl: 1)
  • Mieter­provision (gewerblich)
    2 KM zzgl. MwSt.
  • Kaution
    5.055,00 EUR
  • Nettokaltmiete
    1.685,00 EUR
  • Miete pro m²
    9,52 EUR
  • Nebenkosten
    590,00 EUR
  • Heizkosten
    in der Warmmiete enthalten
  • Warmmiete
    2.275,00 EUR (Heizkosten enthalten)

Ausstattung / Merkmale

  • ✓ Abstellraum
  • ✓ Außenstellplatz
  • ✓ Barrierefrei
  • ✓ Denkmalgeschützt
  • ✓ DV-Verkabelung
  • ✓ Einbauküche
  • ✓ Keller
  • ✓ Personenaufzug

Energieausweis

  • Energieausweis
    nicht erforderlich
    Ein Energiepass ist nicht erforderlich - Grund: Baudenkmäler gem. § 79 (4) GEG

Objekt­beschreibung

Beschreibung

Zur Vermietung steht eine stilvolle Büroetage im Dachgeschoss eines charmanten Altbaus aus dem 19. Jahrhundert. Das Gebäude überzeugt durch seinen historischen Charakter und bietet somit eine besondere Arbeitsatmosphäre.

Sie teilen sich die gesamte Immobilie mit lediglich einer Physiotherapiepraxis, die die beiden darunter liegenden Geschosse angemietet hat.

Ein Aufzug führt vom Keller bis zum 1. Obergeschoss. Über ein paar wenige Stufen gelangen Sie zu Ihrer Etage. Eine behindertengerechte Toilette im Untergeschoss steht allen Mietparteien zur Verfügung.

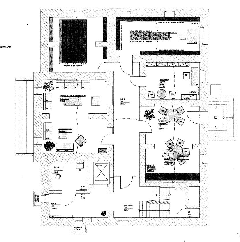
Die Büroetage verfügt derzeit über insgesamt vier bis fünf Räume zuzüglich zwei voll ausgestatteter Badezimmer mit Duschen. Ein Mix aus zwei großen und kleineren Räumen bietet flexible Nutzungsmöglichkeiten.

Zusätzlich stehen ein Hauswirtschaftsraum sowie ein separater Abstellraum zur Verfügung, die praktischen Stauraum bieten. Das gesamte Untergeschoss mit einer großen Küche, einem Büro und weiteren Räumen kann zusätzlich angemietet werden.

Ein Parkplatz befindet sich direkt vor dem Gebäude.

Ausstattung

Objektart: Bürofläche im 2. Obergeschoss

Gebäude: Stilvoller Altbau aus dem 19. Jahrhundert

Nutzung: Büro / Gewerbe

Raumaufteilung: 4 Büroräume (2 kleinere, 2 größere Räume)

Nebenräume: Hauswirtschaftsraum und separater Abstellraum

Sanitäre Ausstattung: 2 Badezimmer sowie eine behindertengerechte Toilette im Untergeschoss

Weitere Räume sowie eine große Küche befinden sich im Untergeschoss und sind separat anmietbar

Mietpreis: 9,52 € / m² (Kaltmiete)

Verfügbarkeit: Ab sofort verfügbar

Lage

Die Büroräume befinden sich in einer wunderschönen Altbauvilla in bester Lage in nächster Nähe zur Göttinger Innenstadt.

Kunden und Mitarbeiter erreichen das Büro fußläufig, mit dem Fahrrad oder bequem mit den öffentlichen Verkehrsmitteln.

Ein Hotel mit Restaurant und auch der Bahnhof liegen wenige Minuten entfernt.

Durch die zentrale Lage in der Mitte Deutschlands und die ideale Verkehrsanbindung bietet Göttingen Ihrem Unternehmen einen idealen Standort mit schneller Erreichbarkeit.

Direktanfrage

Kontaktdaten Daniela Wolpert